Shopping cart
الرئيسية
من نحن
هدفنا
شركائنا
خدماتنا
مشاريعنا
الاخبار
للتواصل
العربية
English
العربية
الرئيسية
من نحن
هدفنا
شركائنا
خدماتنا
مشاريعنا
الاخبار
للتواصل
العربية
English
العربية
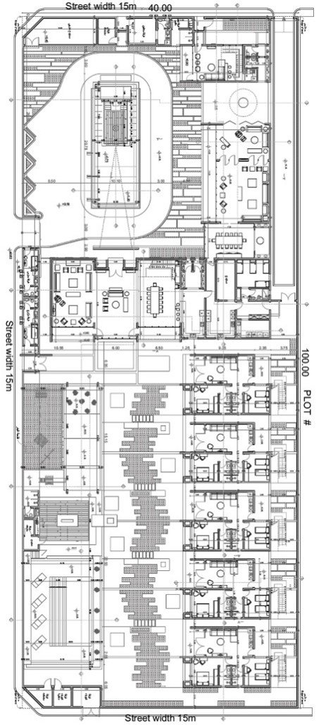
منتجع الخليفي
Home
منتجع الخليفي
منتجع الخليفي
فئة :
سكني